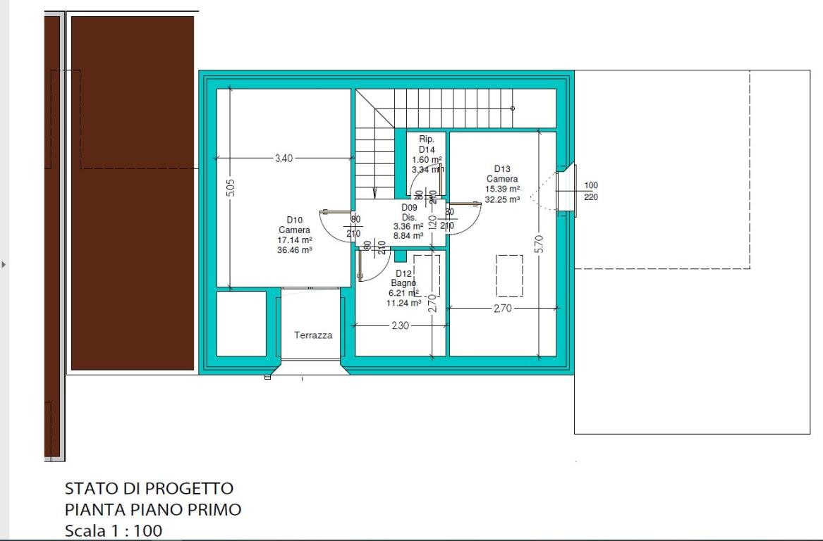
Rif. 1963 Conche di Codevigo, Vendesi terreno edificabile di circa 500mq con progetto approvato per la realizzazione di villetta unifamiliare di circa 130 mq calpestabili suddivisi tra piano terra e primo con giardino, a pochi passi dal centro paese in una zona tranquilla comoda a tutti i servizi, supermercato, scuola, banca, poste... Prezzo del terreno 45.000€
Non certificabile: ESENTE
Rif. 1963 Conche di Codevigo, Vendesi terreno edificabile di circa 500mq con progetto approvato per la realizzazione di villetta unifamiliare di circa 130 mq calpestabili suddivisi tra piano terra e primo con giardino, a pochi passi dal centro paese in una zona tranquilla comoda a tutti i servizi, supermercato, scuola, banca, poste... Prezzo del terreno 45.000€
Riferimento: 1963
Tipologia: Terreno Edificabile
Comune: Codevigo
Zona: Conche
Locali:
Camere:
Bagni:
Cucina:
Box:
Piano:
Anno costruzione:
Stato conservazione:
Spese cond. annue €:
Riscaldamento:
Efficienza energetica
Non certificabile: ESENTE